Molimo unesite svoje kontaktne podatke i dodatnu poruku.
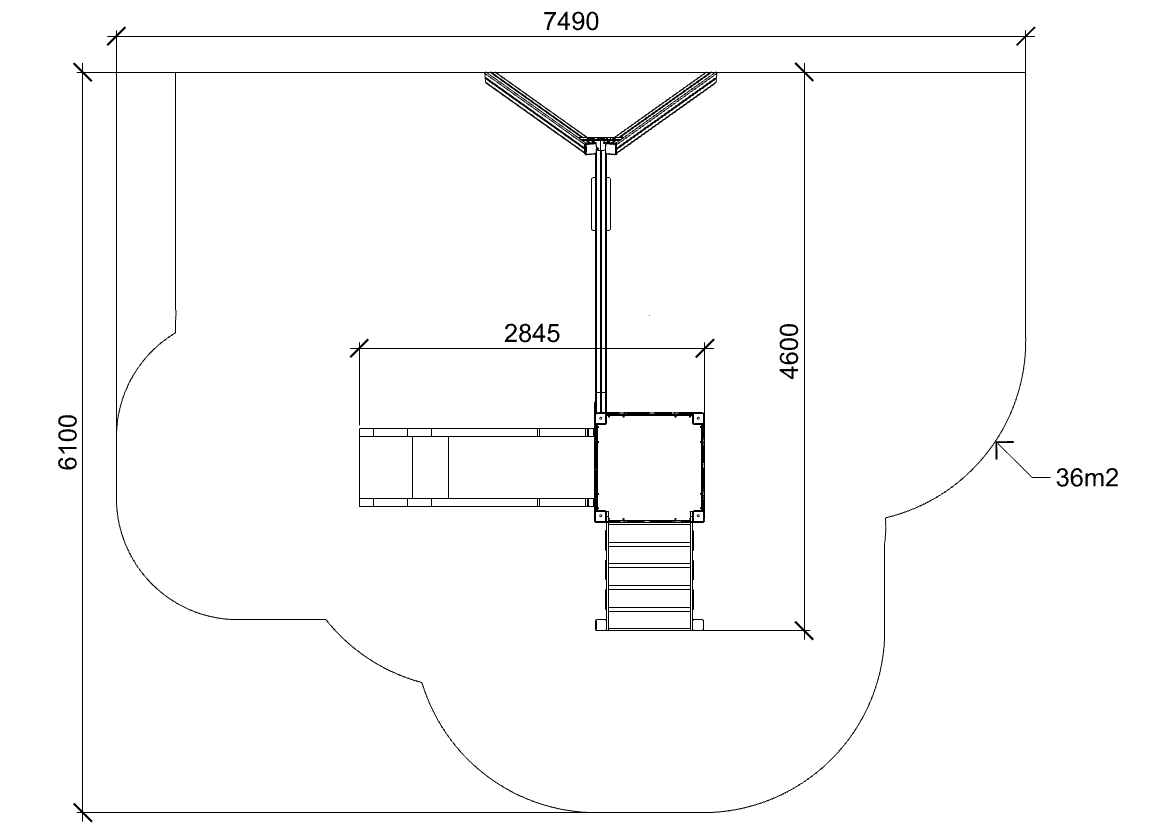
A7107 – SOPHIA BIG
SOPHIA BIG je tematska igrališna sprava koja djeci omogućuje penjanje, istraživanje i kreativnu igru u sigurnom okruženju. Dizajnirana je za javne prostore i dječja igrališta.