Molimo unesite svoje kontaktne podatke i dodatnu poruku.
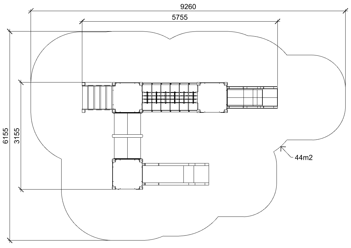
A7304.1 – ZAZU 2
ZAZU 2 je proširena verzija tematskog elementa koja djeci pruža dodatne mogućnosti za igru i zajedničke aktivnosti. Konstrukcija je robusna, stabilna i prilagođena dugotrajnoj vanjskoj upotrebi.