Molimo unesite svoje kontaktne podatke i dodatnu poruku.
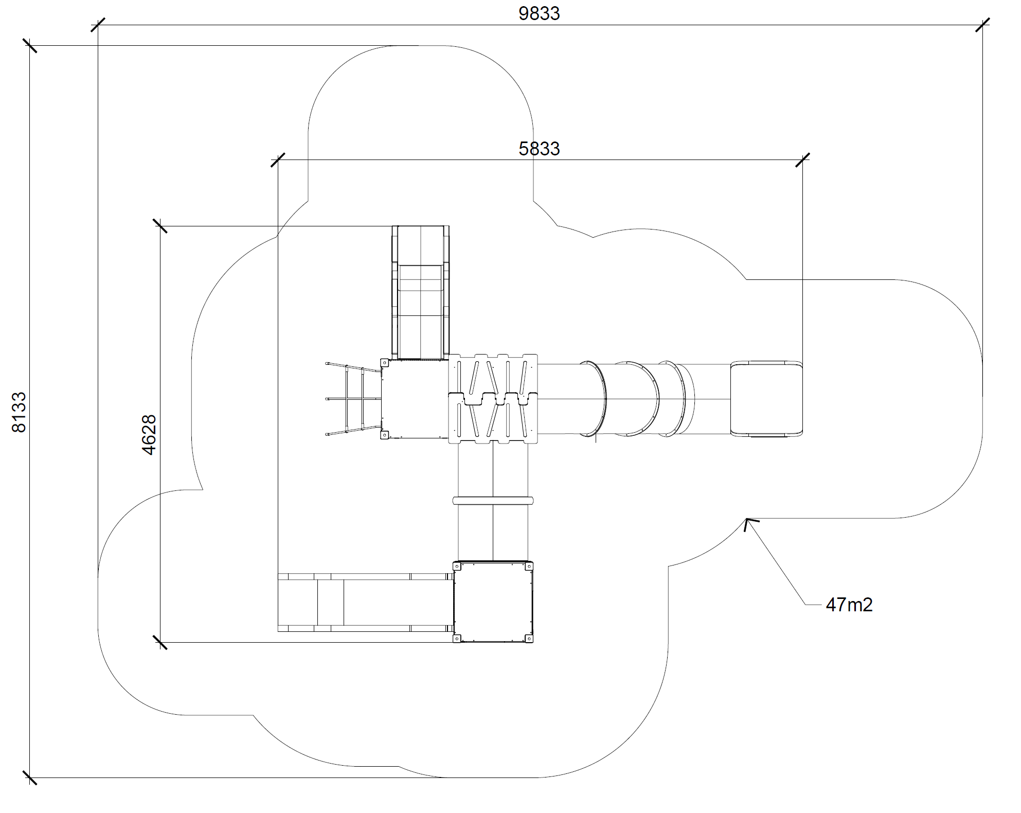
A7307
A7307 je multifunkcionalni igrališni element koji omogućuje slobodnu i kreativnu igru djece različitih uzrasta. Konstrukcija je prilagođena intenzivnoj svakodnevnoj upotrebi na vanjskim igralištima.