Molimo unesite svoje kontaktne podatke i dodatnu poruku.
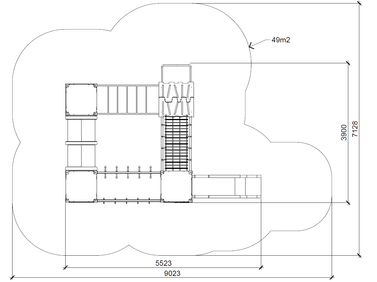
A7403.2 – MIMA 2
MIMA 2 je proširena verzija igraće sprave koja omogućuje više aktivnosti i istovremenu igru većeg broja djece. Namijenjena je razvoju ravnoteže, koordinacije i socijalnih vještina kroz zajedničku igru.