Molimo unesite svoje kontaktne podatke i dodatnu poruku.
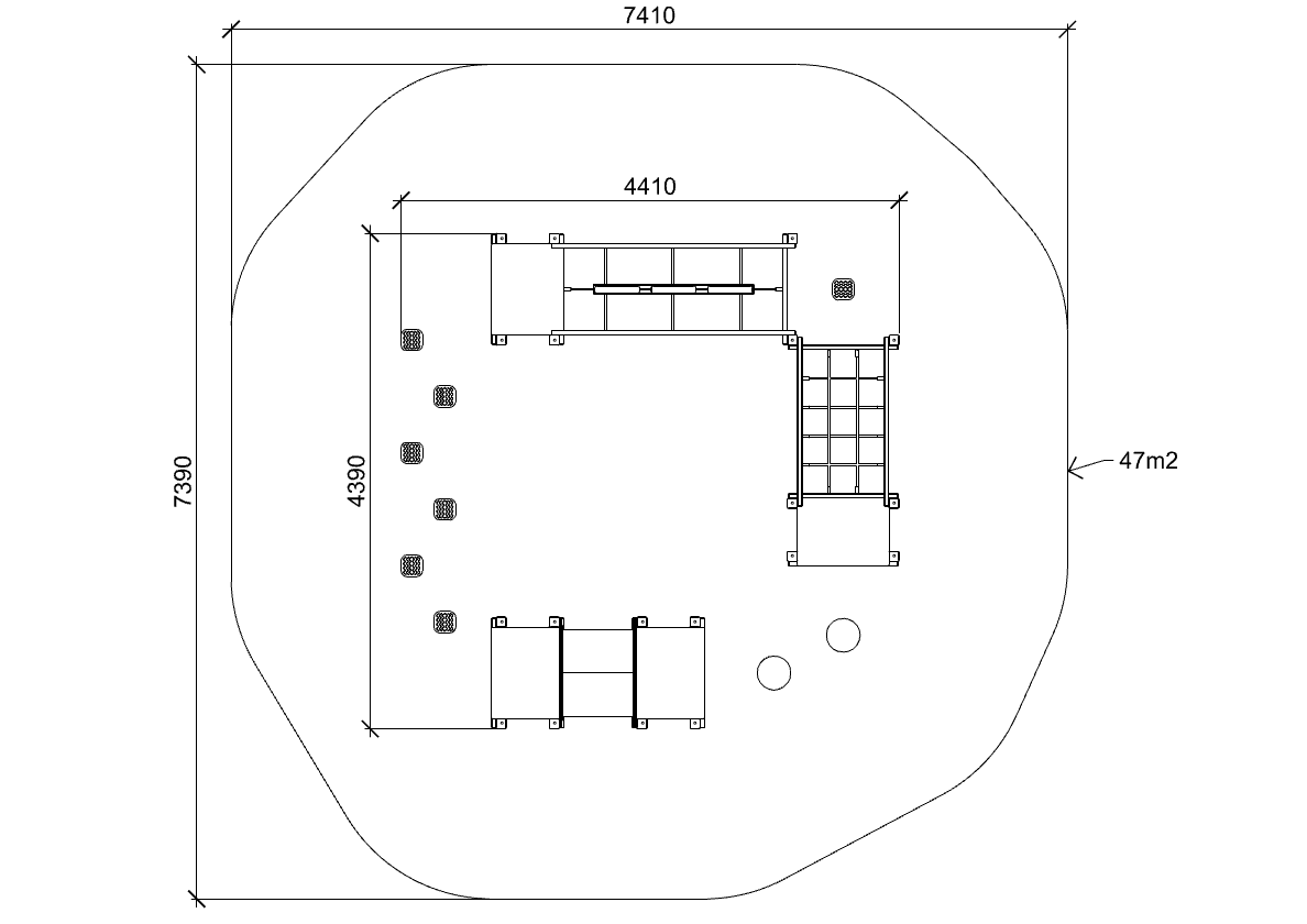
Balansirajuće igralište 1 osmišljeno je za cjelovit razvoj dječje ravnoteže, koordinacije i snage. Različiti elementi potiču aktivno kretanje i istraživanje kroz sigurnu i dinamičnu igru.
Tehnički crteži u AutoCAD formatu
Dokumentacijska datoteka u PDF formatu
Molimo unesite vašu e-mail adresu za dobivanje linka za preuzimanje.