Molimo unesite svoje kontaktne podatke i dodatnu poruku.
Cros 2 je tematski element koji potiče aktivnu igru i slobodno kretanje. Elementi su osmišljeni kako bi djeca razvijala koordinaciju i snagu kroz dinamične igre.
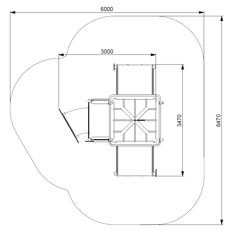
Tehnički crteži u AutoCAD formatu
Dokumentacijska datoteka u PDF formatu
Molimo unesite vašu e-mail adresu za dobivanje linka za preuzimanje.