Molimo unesite svoje kontaktne podatke i dodatnu poruku.
A9009 AC
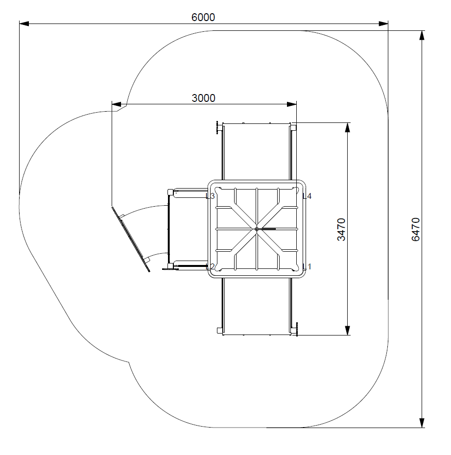
CROS 2 je dio serije elemenata za kretanje i igru koji potiču fizičku aktivnost i razvoj motoričkih sposobnosti. Element omogućuje sigurno penjanje i prelazak, čime se razvijaju ravnoteža i koordinacija.